南宁装修公司热线:18934713863

南宁装修公司泽福居微信公众号二维码

文章
  • 文章

  • 案例

  • 设计师

  • 南宁本土十佳装修公司_泽福居装饰

  • 南宁互联网诚信装修公司保障品牌-泽福居

普罗旺斯郁金香庄园潘先生140㎡装修工程

喜欢(0)

半包 140㎡
普罗旺斯郁金香庄园 潘先生 现代简约风格
  • 预算清单
  • 设计方案


盛天名城128平方米房子装修预算清单 


普罗旺斯小区的业主朋友们,大家好。今天给大家带来的是普罗旺斯郁金香庄园的8栋矮栋的楼中楼套房装修预算清单。欢迎大家参考以下140平米楼中楼房子装修预算清单,由于房子户型比较特别而且该小区买房报价也比较贵,能买到这个复式的潘先生也是具有一定的经济实力的,所以对装修方面的要求也会很高,所以这一套可以算是个豪装系列的预算报价了。


>>>>>>获取精准报价:18934713863  QQ:997626165<<<<<<


本案业主陈小姐是一位成功人士,但由于是陈小姐不是本地人,该套房子仅是过年过节时候来居住的,所以对房子的要求比较简单,只做一个比较简单的装修。各位业主们如果想参考89平米左右房子简单装修的装修预算清单的可以参考一下。


以下报价解析仅供参考:



一楼工程

一、餐厅、过道工程

由于本户型在设计师与业主沟通过后的情况下,原来的三房结构已设计成两房,客厅与书房打通,所以,整个空间变的很大。此空间的项目就比较多,费用属于整个项目中最高的部分。

1铺普通地砖(800*800mm)

2打地脚线槽

3嵌入式地脚线安装

4刮腻子(百旺腻子)

5乳胶漆(多乐士家丽安净味包工料)

6大门包门套

7大门门套油漆

8鞋柜(单面无结杉木齿接板框架,背板为无结杉木齿接板,局部E1级大芯板,外饰优质3厘面板,实木线条收口)

9鞋柜油漆(含内外饰面)

10神位柜(单面无结杉木齿接板框架,背板为无结杉木齿接板,局部E1级大芯板,外饰优质3厘面板,实木线条收口)

11神位柜油漆(含内外饰面)

12隔板墙

13储物间平开门(用双层绿叶金豹牌E1级15厘大芯板做衬底,双面开变形槽,外贴优质绿叶金豹饰面板,实木线条收口。)

14储物间平开门油漆

15储物间门套(双面)

16储物间门套油漆

17酒柜(厚510)

18酒柜油漆(含内外饰面)

19边吊顶(预收)

20电视背景墙造型(预收)

面积数量约251

长度数量约58M

市场价大概是24000元-27000元吊顶、电视背景墙、各类柜子占费用的主要部分


二、客厅工程

1铺普通地砖(800*800mm)

2打地脚线槽

3嵌入式地脚线安装

4刮腻子(百旺腻子)

5乳胶漆(多乐士家丽安净味包工料)

面积数量约144

长度数量约20M

客厅工程的总计市场价大概是2500元-3500元


>>>>>>获取精准报价:18934713863  QQ:997626165<<<<<<


三、长辈房工程 

1铺普通地砖(800*800mm)

2打地脚线槽

3嵌入式地脚线安装

4刮腻子(百旺腻子)

5乳胶漆(多乐士家丽安净味包工料)

  

面积数量约130

长度数量约30M

此方案的长辈房工程总计市场价大概是2500元-3500元


四、房工程  

1铺普通地砖(800*800mm)

2打地脚线槽

3嵌入式地脚线安装

4、刮腻子(百旺腻子)

5乳胶漆(多乐士家丽安净味包工料)

面积数量约105

长度数量约27M

厨房工程总计市场价大概是2000元-2700元


>>>>>>获取精准报价:18934713863  QQ:997626165<<<<<<


厨房工程

1铺防滑砖(300*300mm)

2墙砖普通铺贴(300*450mm)

3包厨房门套(打孔下木楔,绿叶金豹牌E1级15厘大芯板衬底,优质绿叶金豹9厘板做裁口,外贴外饰优质绿叶金豹饰面板木门套线、平线收口,门套线宽55-80㎜,厚度5-10㎜。(油漆另计))

4厨房门门套油漆

5餐厅推拉门

6厨房推拉门油漆

7铝扣板

8铝质天花吊顶铝条收边

面积数量约73

长度数量约27M

主卫工程市场价大概是7000元-8000元


公卫工程

1地面铺防滑砖(300*300mm)

2墙砖普通铺贴(300*450mm)

3卫生间地墙面做防水

4铝扣板

5铝质天花吊顶铝条收边

6卫生间门

面积数量约49

长度数量约9M

生活阳台工程市场价大概是3000元-4000元 

                                      

>>>>>>获取精准报价:18934713863  QQ:997626165<<<<<<


观景阳台工程

1地面铺防滑砖(300*300mm)

2阳台边框铺贴

面积数量约6

铺贴一项

小计:市场大概价格是400元-600


一楼工程小计市场价格大概是:4万—5万



二楼工程


客厅过道工程

1楼梯地砖铺贴

2铺普通地砖(800*800mm)

3、打地脚线槽

4、嵌入式地脚线安装

5刮腻子(百旺腻子)

6乳胶漆(多乐士家丽安净味包工料)

小计:市场大概价格是5000元-6000元


主卧工程

1铺普通地砖(800*800mm)

2打地脚线槽

3嵌入式地脚线安装

4刮腻子(百旺腻子)

5乳胶漆(多乐士家丽安净味包工料)

6地柜(齿接板)有门

7地柜油漆(含内外饰面)

面积数量140㎡

长度数量33M

小计:市场价大概是6000元-7000元


小孩房工程

1铺普通地砖(800*800mm)

2打地脚线槽

3嵌入式地脚线安装

4刮腻子(百旺腻子)

5乳胶漆(多乐士家丽安净味包工料)

面积数量105

长度数26M

小计:以上项目市场价格大约2000元-3000元


书房工程

1铺普通地砖(800*800mm)

2打地脚线槽

3嵌入式地脚线安装

4刮腻子(百旺腻子)

5乳胶漆(多乐士家丽安净味包工料)

6地面榻榻米(170mm高)

7榻榻米油漆(含内外饰面)

面积数量142

长度数30M

小计:以上项目市场价格大约4000元-5000元(榻榻米工程占主要费用,约2000元-2500元)


主卫工程

1地面铺防滑砖(300*300mm)

2墙砖普通铺贴(300*450mm)

3卫生间地墙面做防水

4铝扣板

5、铝质天花吊顶铝条收边

6卫生间门

面积数量48

长度数9M

小计:以上项目市场价格大约3000元-4000元


其他工程

1包管道2.8米以内 (单管/双管)    

2打墙(双砖墙)

3打墙后墙面批补

4拆除原楼梯

5新建楼梯

6垃圾清理费

7垃圾外运

8居室保洁

9材料搬运、转运及上楼费

10卫生间洁具安装

11灯具安装

12开关插座面板安装

13成品保护(成品地砖上加铺纤维板保护。2、卫生间、阳台不计费。)

14防白蚁处理

15防潮处理

16门窗玻璃保护(全房门窗玻璃保护,人工、辅料等)

17马桶、蹲厕排水管改位

18高层施工费

面积数量48

长度数9M

小计:以上项目市场价格大约19000-21000元(新建楼梯约占8000元-10000元)


二楼工程小计市场价格大概是:4万—5万


工程直接费

装修工程管理费(装修工程直接费的8﹪)

小计:以上二层楼项目工程预报价的工程直接费的8%

泽福居装饰承诺:预算与结算相差不超过5%,业主不要求的情况下,我们绝不乱加项目!广大业主请放心选用我们泽福居装饰! 


大概的预算

普罗旺斯郁金香庄园140平方米装修报价清单如上,本案业主自行购买主材,半包工程的费用大概在8.5万元-10左右。本案中楼层为两层,所以涉及到的主材比较多,因为根据不同业主的需求,所做的项目不同,使用的材料不品质一样,费用会差异较大,所以小编给业主预估的主材大约为6.5万元-8万元。因此:140平米楼中楼装修中,包含以上所有工程的全包价格大概是15-18万元


泽福居小编温馨提示:此清单价格仅供参考。


>>>>>>获取精准报价:18934713863  QQ:997626165<<<<<<


旷野
预约案例21

家是心灵的港湾,家的艺术首先是生活的艺术,完美的作品就是空间需求与艺术的结合。有家的存在,人们枯燥的城市生活就可以有色彩,就可以有放飞想象的空间。帮用户利用好每1㎡空间,节省更多的钱!

设计说明 


   

      本案是位于普罗旺斯郁金香庄园里的独栋低层复式套房,设计师旷野为潘先生设计了一个主白色与米黄色色调的色调,这样一来,因为是一楼,也不会显得整个室内光线不足了。客厅背景墙采用了亮砖线条型设计,一楼厨房与餐厅为正餐所用。二楼厨房里设计了一个小吧台,可以方便吃早餐及一些小甜品等。很有一番韵味

 

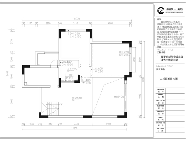
原始结构图 


     普罗旺斯郁金香庄园一楼原始结构图

普罗旺斯郁金香庄园一楼原始结构图

普罗旺斯郁金香庄园二楼原始结构图

普罗旺斯郁金香庄园二楼原始结构图


平面布置图 


普罗旺斯郁金香庄园一楼平面布置图     


普罗旺斯郁金香庄园一楼平面布置图

普罗旺斯郁金香庄园二楼平面布置图 

普罗旺斯郁金香庄园二楼平面布置图

>>>>>>免费获取设计方案:18934713863  QQ997626165<<<<<<


 

 

  • 相关工地
  • 荣和山水美地自由湾
    荣和山水美地自由湾
    250㎡中式风格
  • 江南口腔医院
    江南口腔医院
    250㎡现代简约
  • 金桥农贸批发市场商铺
    金桥农贸批发市场商铺
    150㎡混搭风格